- Молния М

  На главную страницу «Молния - М» Строительная компания
ЗАО "Молния-М"

Балашиха, ул.9-я линия, дом 60

мкр-н Никольско-Архангельский
Новостройки в Железнодорожном
Новостройки в Балашихе
Новостройки в Подмосковье
Ипотека
ЗАО "Молния-М"
Балашиха, ул.9-я линия, дом 60

мкр-н Никольско-Архангельский

График работы: 8.00-17.00

Заказать звонок

525-56-56

звонок бесплатный
mail@molniam.ru

График работы: 8.00-17.00

Фундаментальные основы
для достойной жизни!

 
 
  о компании     услуги     жилая недвижимость     коммерческая недвижимость     покупателям     контакты  
 
главная  ---   Коммерческая недвижимость  ---   3-х этажное нежилое здание в г.Серпухов  ---   Планировки нежилых помещений
 

Коммерческая недвижимость
Аренда торговых площадей в ТЦ г.Электросталь
Аренда нежилых помещений в г.Щелково
Аренда нежилых помещений в г. Железнодорожный
3-х этажное нежилое здание в г.Серпухов
Недвижимость за рубежом
Хорватия

Варианты планировок

Подвал

Вариант 1 Варинт 2
   

1 этаж

Вариант 1 Вариант 2
   

2 этаж

   
Вариант 1 Вариант 2
   

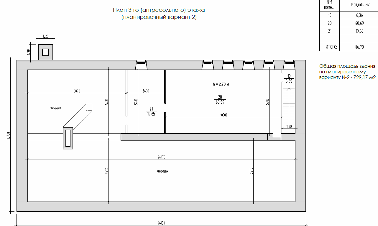
3 этаж

Вариант 1 Вариант 2
   

 

Контакты:

 Ольга  Корзникова  8 (905) 787-62-96

Екатерина Бобрусева  8 (926) 188-42-90

покупателям квартир

Ипотека

Аренда торговых площадей

Продается коттедж

Московская область, Одинцовский район, хутор Рожновка.

новости компании
04.03.19
 Согласован отчет о проведении специальной оценки условий труда в ГК "Молния": ЗАО "Молния-М", ООО "СК "Молния", ООО "ПСКМ", ООО "Юрком", ООО "Отделстрой"
подробнее
05.02.17
Дорогие коллеги! Вот уже 25 лет наш дружный и сплоченый коллектив успешно и плодотворно трудится, покоряя все новые вершины успеха. В...
подробнее
Читать все новости
 
 
  о компании     услуги     жилая недвижимость     коммерческая недвижимость     покупателям     контакты  
 
  
Рейтинг@Mail.ru Rambler's Top100


статьи
  На главную страницу «Молния - М» Строительная компания ЗАО "Молния-М"
143956, Московская область, г.Балашиха, мкр-н Никольско-Архангельский, ул.9-я линия, дом 60

Телефоны: +7 (495) 525-56-56, +7 (495) 926-89-66 форма для связи
строительная лицензия №12/6 от 05.04.2005

Разработка и продвижение сайтов
Продажа квартир в готовых домах в Подмосковье от компании-застройщика ЗАО Молния-М